
物件番号【K-209】
現地は、自然の樹木に囲まれた閑静な環境の高級別荘地です。
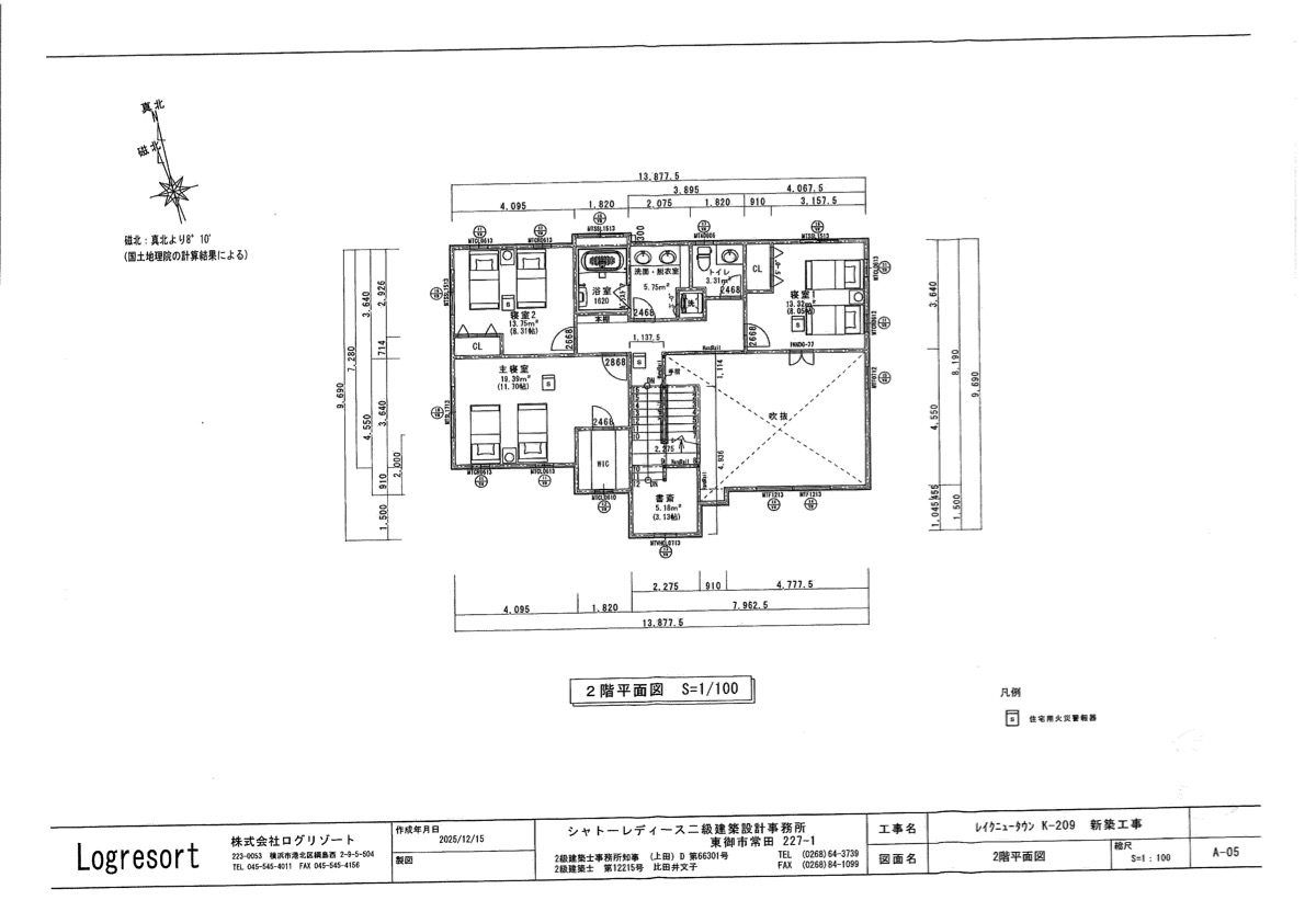
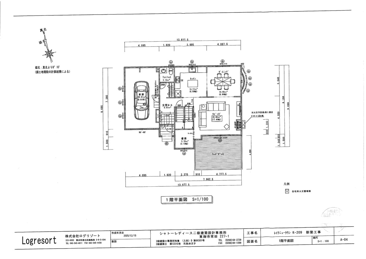
建物は3LDK+ビルトインガレージ+南向きの日当たりの良いウッドデッキ付き。
全館集中の暖房、冷房、除湿、LDKには床暖房設備、ガス暖炉の設備も付きます。
窓等のガラス類は全てトリプルガラス樹脂サッシ、ペアガラスの2倍の断熱性能、高断熱ですので結露の心配はありません。
全館集中のエアコントロールシステムをエコエネルギーでの運転を可能にしています。
約4kwの太陽光発電設備+蓄電池付です、停電時や万が一の災害時にも電力が確保されます。
ご不在時には中部電力に余剰電気は売電され電気料金の節約になります。
壁天井の断熱施工は現場吹きの発泡ウレタン50mmの高断熱のエコエネルギーの建物です。
四季を通じて全館で健康的に快適にお住まいいただけます。
建物内装は米国アシュレイ社のインテリアコーディネイトによる輸入高級家具類の内装家具類、カーテン類付き。
内装の写真は販売済み同等物件の参考写真です、外観のパース図は完成予想図です。
平坦な約170坪の敷地は芝貼や植栽のお庭に造成されます。
この物件にご興味を頂けました場合は詳細をお問合せください。
輸入住宅の魅力・人気の秘密は、洗練されたデザインと冬暖かく夏涼しい「高気密高断熱」の工法です。ログリゾートは輸入住宅の中でも“アメリカンハウス”にこだわり、映画やドラマに登場するようなアメリカのライフスタイルを実感できる、インテリア・エクステリアまでトータルコーディネートされた、アメリカンリゾートハウス注文住宅をご提供しています。

物件番号【L-228】